液壓圓錐破碎機配備液壓馬達提升效率
發布時間:
2017-08-09
來源:佰辰重工
作者:佰辰重工
破碎行業、粉體行業以、烘干行業、冶金礦山等行業之間存在著的關聯,其之間的關系相輔相成缺一不可,以磨粉機為例,雷蒙磨整體生產線不僅離不開破碎機當然也離不開其他輔助設備,整體協調發展才能完成整條生產線工序。液壓圓錐破碎機也是如此。
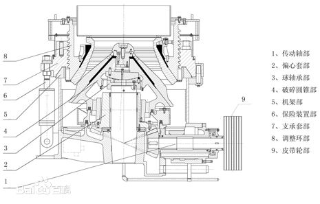
液壓圓錐破碎機主機則由調整環、機架、球軸承、偏心套以及傳動軸等部件組成,如圖所示,整體優勢明顯,在破碎率方面大大提高,與傳統普通破碎機相比不僅擴大了應用范圍其次破碎細度也逐漸擴大,從中碎、細碎到細等不同顆粒度的破碎。

液壓圓錐破碎機整體拆裝方便,維修方便,從部到側面拆裝維修,通過對零部件的拆裝維護保養從而提升生產效率,動錐定錐可拆卸維護,緊固螺栓等,根據日常使用情況更換襯板,在原有的基礎上配備液壓馬達,提升生產效率。定期維修保養,根據使用情況更換破碎腔從粗型到短頭細腔型等,滿足用戶生產所需。本文來自http://m.robertavinci.com
行業新聞
相關資訊
熱線:13290708111
時間:9:00 - 18:00